Holzschlag an der Pfaffenrainstrasse
16. Jan 2024

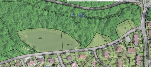
Ab 29. Januar 2024 wird an der Pfaffenrainstrasse im oberen Teil des Chäppeligrabens, ein Holzschlag durchgeführt (siehe Karte).
Die Arbeiten dauern rund zwei Wochen. Die im Bereich des Holzschlags vorhandenen öffentlichen Parkplätze werden in dieser Zeit mit einem Parkverbot belegt.
Der Waldbestand an dieser Stelle weist starke Schäden auf. Um die Sicherheit zu gewährleisten, ist das Entfernen dieser Bäume unabdingbar. Im Zuge dieses Holzschlages wird auch der Waldrand, welcher bei den beiden privaten Weihnachtsbaumflächen stark in das Kulturland hinausgewachsen ist, zurück auf die Waldlinie gesetzt und ökologisch aufgewertet. Diese Arbeiten erfolgen gemäss dem Waldrandkonzept der Gemeinde Bottmingen.
Die Arbeiten erfolgen unter der Leitung des Forstreviers Allschwil / vorderes Leimental. Bei Fragen wenden sie sich bitte an den Stv. Betriebsleiter P. Gall, 076 697 45 85.
